Grond

Rensbergstraat 21A , VOLLEZELE € 185 000
  • Bewoonbare oppervlakte 160m2
  • Slaapkamers 3
  • Badkamers 1

Grond

Rensbergstraat 21A , VOLLEZELE € 185 000

Bouwgrond met plan en vergunning op een terrein van 749m²

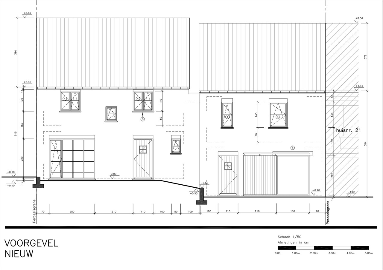
Absolute topper! We treffen dit te bouwen nieuwbouwpand aan in de Rensbergstraat ter hoogte van huisnummer 21A te Vollezele.
We bieden een bouwgrond aan met plan en vergunning op een terrein van 749 m² .
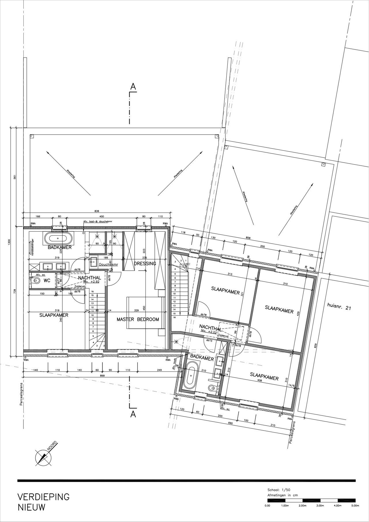
Het betreft de rechtse woning op de plannen (zie foto's), met een bewoonbare oppervlakte van ongeveer 160m².

Op de gelijkvloerse verdieping vinden we een ruime inkomhal met aansluitend een toilet. Hier aanpalend bevindt zich een bureelgedeelte. Vervolgens kunnen we de ruime leefruimte met aansluitend de eetplaats en een rijkelijk uitgeruste keuken vinden. Er is een groot terras en een grote tuin. Tot slot is aansluitend aan de keuken nog de wasplaats en een berging;
Op de eerste verdieping bevindt zich de nachthal, een badkamer met douche, ligbad en toilet en nog 3 slaapkamers.
De zolder zal toegankelijk zijn met een zolderluik.

Voor meer informatie of een bezoek, contacteer Kristof van Immo Zone op het nummer 0484/ 84. 84. 86.

Interesse?

Kristof Vanderbeken BIV: 511.931 0484 84 84 86

Algemeen

  • Referentie 3627293
  • Bouwjaar 0
  • Bewoonbare oppervlakte 160m2
  • Oppervlakte grond 749m2
  • UC EPB van toepassing

Comfort

  • Slaapkamers 3
  • Tuin Ja
  • Terras Ja
  • Garage Nee

Technisch

  • Voorkooprecht Nog niet aangevraagd
  • Dagvaarding Nog niet aangevraagd
  • Verkavelingvergunning Nog niet aangevraagd
  • Bouwvergunning Nog niet aangevraagd
  • G-score Klasse A
  • P-score Klasse A

Documenten

Documenten bekijken? Registreer je hier.

Meer informatie gewenst? Contacteer ons

Immo Zone BV

  • Keizersplein 71 9300 Aalst
    Ondernemingsnummer: 0451.433.050

Volg Immo-Zone

IMMO ZONE BV is een professionele vennootschap onderworpen aan de deontologische code van het BIV. Erkend Vastgoedmakelaar met BIV nr. 511 931 | BE 0451.433.050
Land van toekenning is België. Adres BIV: Luxemburgstraat, 16B, 1000 BRUSSEL. KB van 27 september 2006
BA en borgstelling via NV AXA Belgium polisnr. 730.390.160

Toezichthoudende autoriteit: Beroepsinstituut van Vastgoedmakelaars, Luxemburgstraat 16 B te 1000 Brussel, 02 505 38 50, info@biv.be