Onder optie

Investeringsgoed

Hekkergemstraat 8 , SCHELLEBELLE € 195 000
  • Bewoonbare oppervlakte 350m2
  • Slaapkamers 6
  • Badkamers 3

Investeringsgoed

Hekkergemstraat 8 , SCHELLEBELLE € 195 000

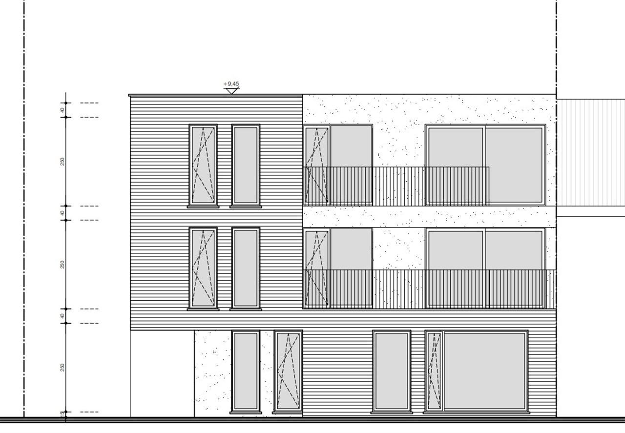
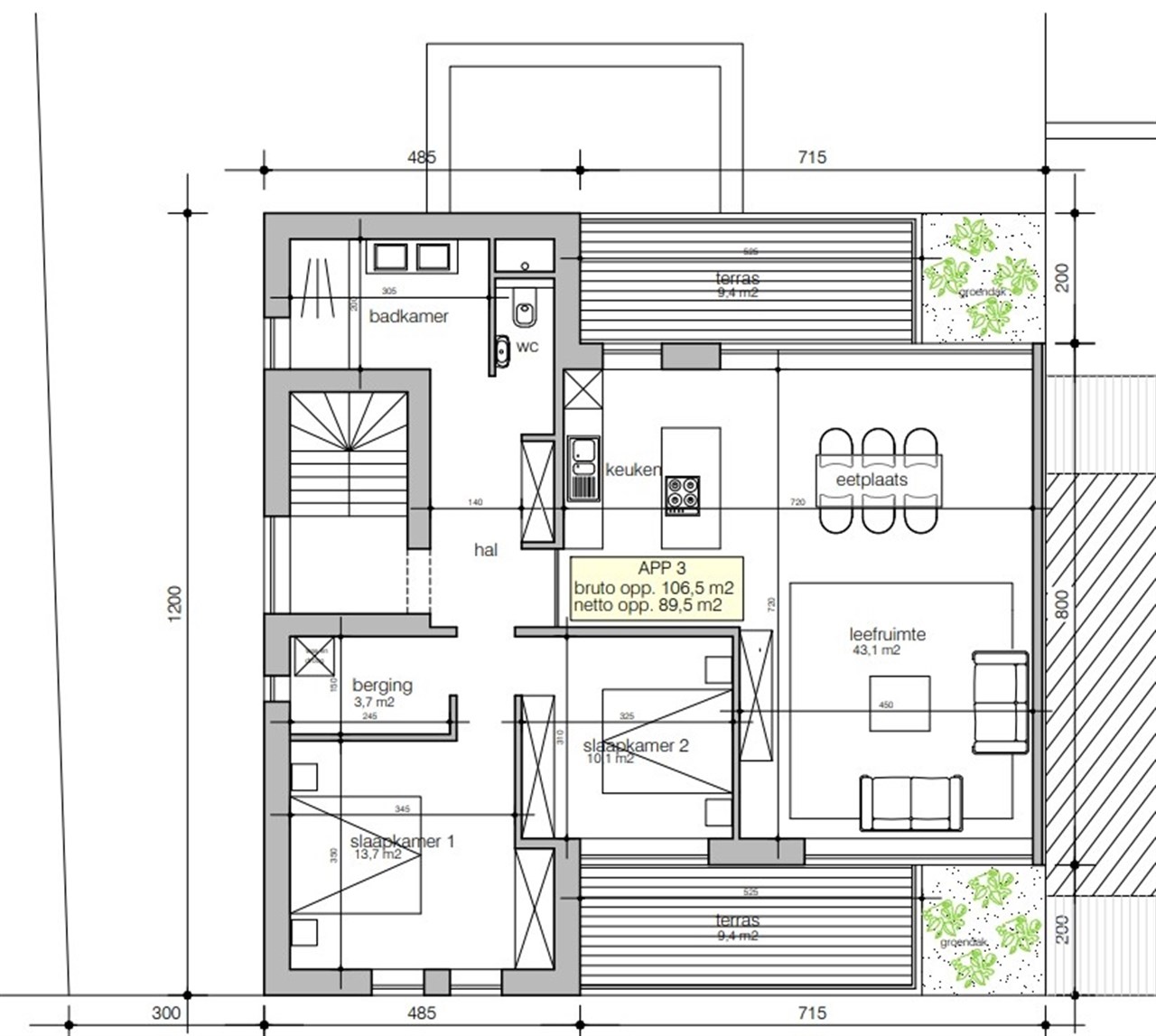
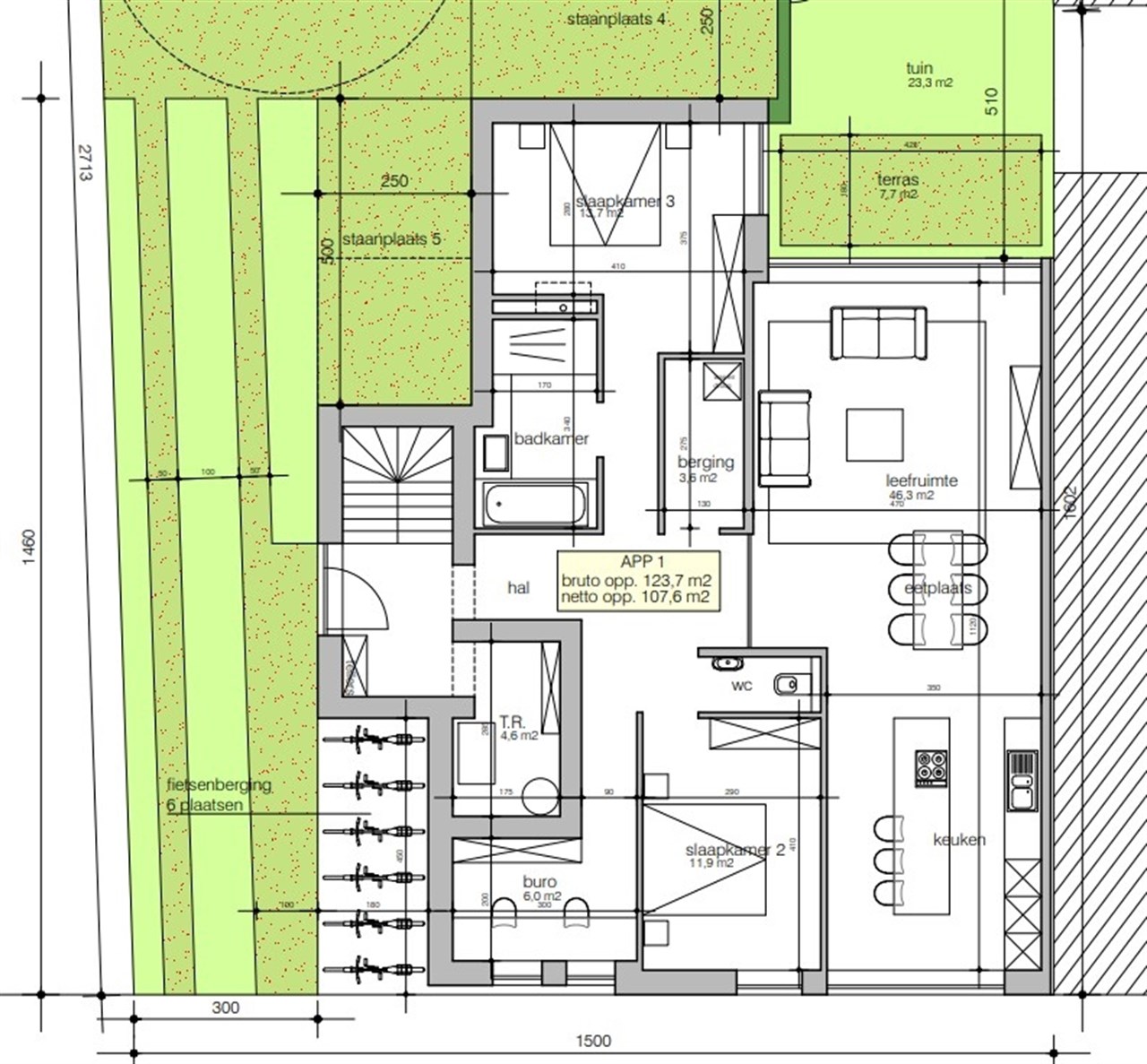
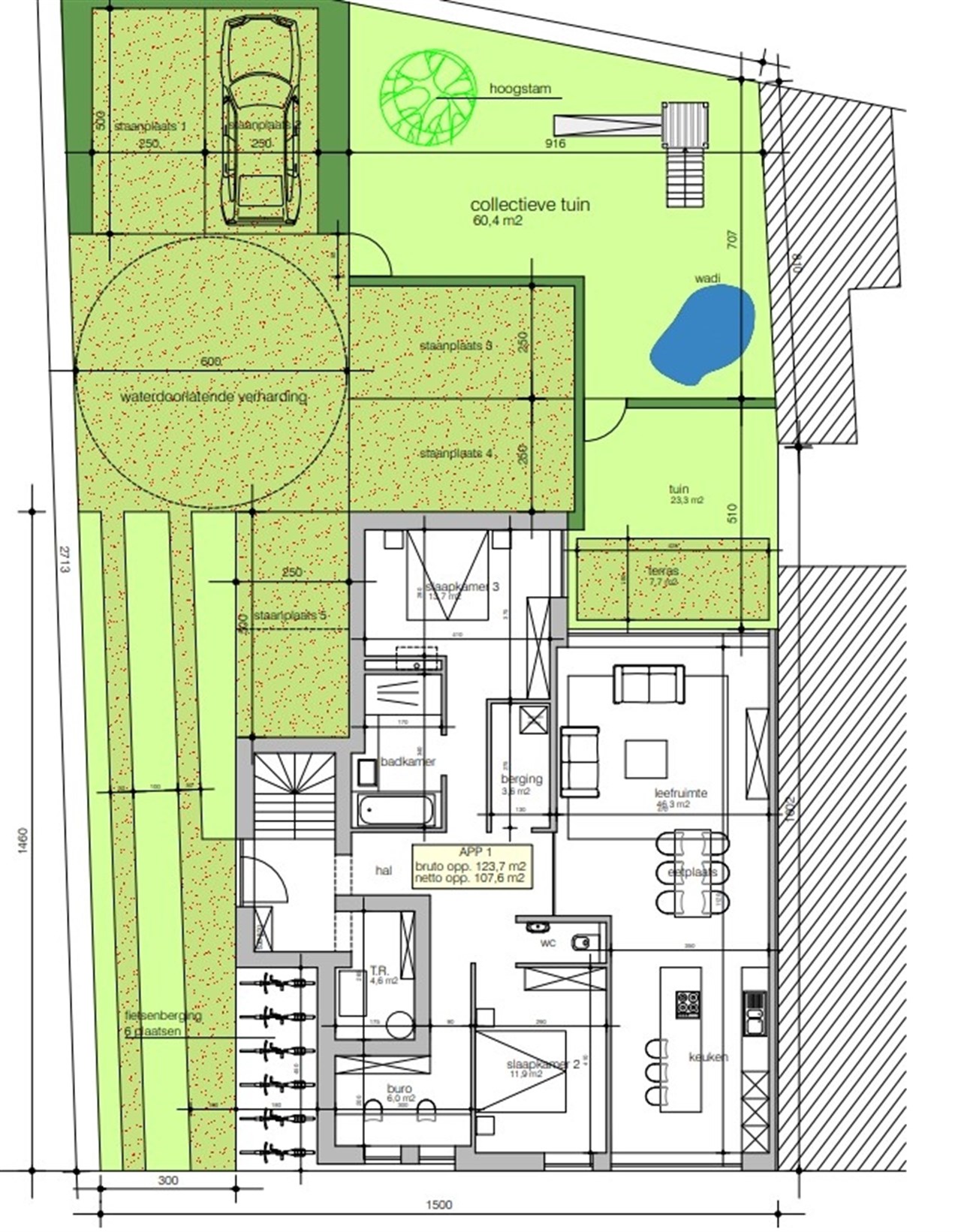
Op te richten building met 3 appartementen in hartje Schellebelle

In het hartje van Schellebelle bieden wij deze interessante ontwikkelingsmogelijkheid aan. Schellebelle is gelegen naast de Schelde, en kan genieten van een rijke historie, een bruisende gemeente waar veel te beleven is en het prachtige natuurgebied “De Kalkense Meersen” dat bereikbaar is via de overzetboot en perfect voor wandelen, fietsen en het verkennen van de rijke fauna en flora geschikt is. Verder zijn alle gewenste voorzieningen aanwezig en kent het een vlotte bereikbaarheid en een goede mobiliteit.

Op deze grond waarop heden een woning opstaat dat geschikt is voor “afbraak en heropbouw” is er mogelijkheid om een kleinschalige building te bouwen bestaande uit 3 royale appartementen. De te bouwen appartementen beschikken over mooie volumes, leuke indeling, voldoende buitenruimtes en veel lichtinval.

De getoonde plannen zijn een voorontwerp van wat de dienst stedenbouw Wichelen zou toelaten om te bouwen. Indien gewenst kunnen de huidige eigenaars voor dit concept een vergunning verkrijgen. Eigen plannen en ideeën zijn uiteraard ook mogelijk, maar dienen afgetoest te worden met de nodige instanties.

Interesse in deze ontwikkelingsmogelijkheid? Contacteer Quinten van Immo Zone op 0485/02.48.04 of via quinten@immo-zone.be

Interesse?

Quinten Van Hauwermeiren BIV: BIV 517.26 0485 02 48 04

Algemeen

  • Referentie 3627578
  • Bouwjaar 2025
  • Bewoonbare oppervlakte 350m2
  • Bebouwde oppervlakte 160m2
  • Oppervlakte grond 319m2
  • Oppervlakte terras 13m2
  • EPC A

Comfort

  • Slaapkamers 6
  • Tuin Ja
  • Terras Ja
  • Garage Nee

Technisch

  • Voorkooprecht Nee
  • Dagvaarding Geen rechterlijke herstelmaatregel of bestuurlijke maatregel opgelegd
  • Verkavelingvergunning Nee
  • Bouwvergunning Nog niet aangevraagd
  • G-score Klasse A
  • P-score Klasse A

Documenten

Documenten bekijken? Registreer je hier.

Meer informatie gewenst? Contacteer ons

Immo Zone BV

  • Keizersplein 71 9300 Aalst
    Ondernemingsnummer: 0451.433.050

Volg Immo-Zone

IMMO ZONE BV is een professionele vennootschap onderworpen aan de deontologische code van het BIV. Erkend Vastgoedmakelaar met BIV nr. 511 931 | BE 0451.433.050
Land van toekenning is België. Adres BIV: Luxemburgstraat, 16B, 1000 BRUSSEL. KB van 27 september 2006
BA en borgstelling via NV AXA Belgium polisnr. 730.390.160

Toezichthoudende autoriteit: Beroepsinstituut van Vastgoedmakelaars, Luxemburgstraat 16 B te 1000 Brussel